Request A FREE ESTIMATE
Call Today (860) 292-6700

The Kitchen & Floor Store CT
The Kitchen & Floor Store CT is a design & remodeling company. We are family-owned and operated and have completed home improvement projects of all sizes, specializing in kitchens, baths, basements, and cabinetry. It is our goal for you to have fun and enjoy working with us through the entire project. Your home is likely the single most important investment of your life; we want our collaboration to leave you with a smile on your face and a testimonial of our expertise.
Come see our showroom to get design inspiration and consultation for your next project.

Our Services
We are your premier showroom for designing and remodeling your new home project. We carry a wide selection of countertops, cabinetry, flooring, custom built kitchens, and more. Our in-house team will work directly with homeowners and contractors to ensure your dream project is perfect.
- countertopsCountertops
- door_slidingCabinetry
- windowFlooring
Our Design Process
Our commitment to service is simple, and The Kitchen & Floor Store CT applies it to any job we do. It is important to us to provide our clients with professional, high-quality products and design solutions that address your needs and are completed within your budget.
1

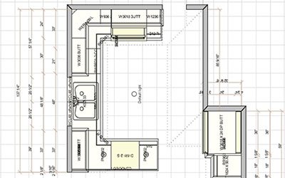
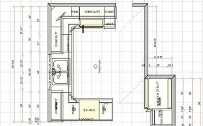
Measure
Our first step will be to come out and measure your project. After we have all of our measurements we will create a blueprint for you to help determine how much your project will cost you.
2

Design
When you are in the design phase we will create a 3d mockup of your project. You shouldnt have to guess what your new kitchen or bathroom will look like. When the design is finalized we will order the material and schedule your install.
3

Install
Once everything is set we will begin the install phase. Finally, your dream kitchen or bathroom is almost completed. We will work with homeowners and contractors to achieve the best.
Come Visit Our Showroom
If you are looking to remodel your kitchen or bathroom, consider The Kitchen and Floor Store CT. Our process is designed to give you the best looking kitchen or bathroom in the neighborhood. We invite you into our showroom to pick out the style you like. Order the material and have it installed in no time.
Book an appointment with us today. We currently do not take walk-ins.
